Villa Carmen de Fuentebravía
Villa en primera línea efectiva de mar, ubicada en la última bajada de la urbanización de El Manantial, y dando sus vistas directamente a la Playa de Fuentebravía, en El Puerto de Santa María.

Ubicación exclusiva
Villa Carmen de Fuentebravía se encuentra en primera línea de mar en la urbanización de El Manantial, con vistas directas a la Playa de Fuentebravía, en El Puerto de Santa María, Cádiz. Desde su ubicación, se puede disfrutar de vistas panorámicas de 360º de toda la Bahía de Cádiz, desde Rota hasta el propio Cádiz.
La villa ha sido diseñada para aprovechar al máximo sus características geográficas, respetando el entorno natural. Su construcción moderna se integra perfectamente con el paisaje dunar, ofreciendo vistas inmejorables al mar desde cualquier planta.
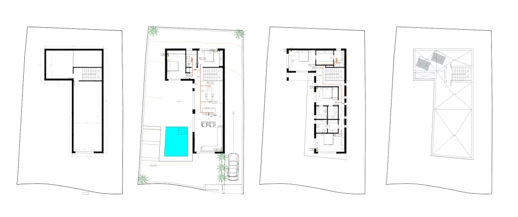
Distribución en cuatro plantas:
- Planta Baja: Un espacio diáfano con luz natural y vistas al jardín botánico.
- Primera Planta: Piscina de horizonte infinito con vistas directas al mar.
- Segunda Planta: Todas las estancias tienen vistas privilegiadas de la bahía.
- Azotea transitable: Un área chill out con pérgolas y hamacas, ideal para disfrutar del ambiente costero.
El jardín exterior está cuidadosamente diseñado con una combinación de palmeras, buganvillas, gardenias y plantas típicas gaditanas. Incluye una piscina de horizonte infinito rodeada de césped artificial de alta calidad, perfecta para disfrutar de las mejores puestas de sol y relajarse escuchando el sonido de las olas.
El parking privado oculto detrás del tapial trasero tiene capacidad para cuatro vehículos, asegurando comodidad y privacidad en una zona de alta demanda.
Un espacio abierto y luminoso:
Al entrar, te recibe un open space diáfano, con suelos de mármol en tonos beige que evocan las dunas de la zona. El área incluye:
- Cocina americana totalmente equipada, integrada armoniosamente con el salón, ideal para cocinar o disfrutar de la mejor gastronomía local.
- Un salón luminoso con grandes ventanales que permiten que la luz natural inunde el espacio, brindando vistas espectaculares al mar.
La planta superior es un refugio de lujo con cuatro dormitorios, todos con impresionantes vistas al mar y acceso a balcones privados.
- Dormitorio principal: Un espacio lujoso con un gran ventanal, vestidor y baño tipo spa.
- Dormitorios secundarios: Tres dormitorios adicionales, cada uno con su propio baño privado, decorados con materiales de alta calidad.
La azotea transitable es un verdadero paraíso, diseñada para relajarse y disfrutar del entorno. Con suelos antideslizantes, zonas de sofás y pérgolas, es el lugar perfecto para disfrutar de largas charlas, cenas al aire libre o simplemente contemplar las vistas inigualables del mar.
En imágenes
Sumérgete en la belleza de Villa Carmen a través de esta selección de imágenes. Cada rincón de la villa ha sido diseñado para ofrecer una experiencia única, desde sus espectaculares vistas al mar hasta sus espacios interiores llenos de elegancia y confort. Explora los detalles arquitectónicos, los lujosos acabados y los paisajes que hacen de esta villa un lugar inolvidable en la Bahía de Cádiz.
planta gym + 3 plantas superiores
5 DORMITORIOS COMPLETOS con vestidor y baño en suite
PISCINA de horizonte infinito
APARCAMIENTO PRIVADO
azotea chill out




Villa Carmen de Fuentebravía ofrece una combinación única de elegancia moderna, confort y una ubicación privilegiada en la costa gaditana. Su diseño, tanto interior como exterior, está pensado para maximizar la conexión con la naturaleza, brindando un ambiente acogedor y lujoso.
Villa Carmen de Fuentebravía ofrece una combinación única de elegancia moderna, confort y una ubicación privilegiada en la costa gaditana. Su diseño, tanto interior como exterior, está pensado para maximizar la conexión con la naturaleza, brindando un ambiente acogedor y lujoso.